Detecting your location...

Stainless Steel Wine Tanks

Shop by collection
51 products

  • Replacement Dry Airlock for VC Tanks

    Replacement Dry Airlock for VC Tanks

    2 reviews

    Dry airlock with marble for variable capacity tanks. Features a threaded shaft, and a plastic backnut with gasket that screws onto the underside. The outside dimension of the threads is 1-13/16 inch, it will fit a hole from 1-13/16 in to 2-1/4 in wide. The inside measurement of the airlock is 1-1/2 inch.Includes a marble with allows the release of gasses, but will not allow air into the tank. The marble is the sealing device, no water or other valves are used. Features a tab with hole on the top so you can attach a rope for raising or lowering the VC lid.

    $16.49

  • White Plastic Barb for Marchisio Tank Spigot

    Plastic Barb Attachment for Marchisio SPA Tank Spigot

    The SPA series variable capacity tanks from Marchisio come standard with a BSP spigot with ENO style threads at the outlet. This white plastic barb can be used to easily attach transfer tubing to the spigot. Alternatively, the included spigot can be replaced with a BSP ball valve in order to convert the connection to tri-clamp or other preferred connection types. 1/2" OD barb.  

    $14.99

  • Low stock! Speidel 3850L, 1600mm Diameter FO Dish Bottom Variable Volume Tank w/ Lid - Partial Jacket - Manway Speidel 3850L, 1600mm Diameter FO Dish Bottom Variable Volume Tank w/ Lid - Partial Jacket - Manway

    Speidel Variable Volume Tank | Cooling Jacket | Manway | Laser-Welded | Stainless Steel | 3850L

    Please​ note: the primary image is an example image and does not exactly match this tank. See below for features and specifications. Variable capacity tank well-suited for fermentation, wine aging, kombucha, and other applications Floating lid can be positioned as needed to match the volume of the liquid you're working with Proprietary rubber lid gasket allows for a superior seal compared to traditional gaskets, providing better protection for your wine Partial coverage cooling jacket for glycol cooling Swinging manyway door for easy removal of grape skins Hand crank lifting arm for lowering and lifting the floating lid Made in Germany by Speidel We are proud to present our line of premium quality stainless steel tanks. Built in Germany by Speidel, the world-class traditions of German engineering and craftsmanship are reflected in these tanks. And, after examining tanks built by every major manufacturer worldwide, we can safely say that when it comes to features, quality and price, these tanks represent the very best value available in stainless steel wine storage. Speidel Quality Features: Cooling Jacket - Fermenters are equipped with a partial jacket that is designed for an operating pressure of 2.5 to 6 bar. This will allow you to hook it into a glycol system (see our Kreyer Chilly45, GLY410) for complete temperature control! Interior Finish - Speidel tanks feature an ultra-smooth 2R rated interior surface which effectively resists the build-up of tartrate residues. Clean your tanks with cold water after cold stabilization! Say goodbye to harsh cleaning chemicals and expensive CIP systems! Weld Quality - Speidel's robotic-arm laser welders create flawless stainless to stainless junctions that look and feel more like a taped fabric seam than a traditional weld. Ultra high-quality welds leave no chance for residual product to harbor spoilage organisms. Thickness - Speidel tanks are designed to be the correct thickness for the tank's total volume. Manway - The "red wine" manway allows you to easily remove skins. Complete Drainage Bottoms - All Speidel tanks are outfitted with conical, pocketed bottoms for total drainage, which maximizes product yield at rackings and makes cleaning a snap. *Please note that smaller, flat-bottomed tanks do not feature total drainage bottoms. Tri-Clamp Valve Ferrules - All Speidel tanks come configured for use with Tri-Clamp (TC) style valves and fittings. Tanks up to 1600L capacity are outfitted with 1.5" TC racking outlet and bottom outlet. **Please Note: TC valves not included. Please inquire with your sales associate for pricing on TC valves and fittings. Rubber Lid Gaskets - The white rubber gaskets used by Speidel are much thicker than the traditional clear vinyl gaskets, which along with their extruded manufacturing process provide a much better seal with the tanks wall. They're seamless and more oxygen resistant than the clear gaskets. That means better protection for your wines! Warranty - Speidel-Behaelter, GMBH backs up each and every tank with an industry-leading 25 year warranty against defects in materials or workmanship. And, as a 5th generation manufacturer, you can be confident they'll be around to honor that warranty should the need arise. Tank Features: Volume: Sealed, 3850 L Variable Capacity Tank includes Floating lid and Heavy Duty White Rubber Gasket Complete Drainage Dish Bottom Lifting Arm Reinforced Racking valve 1.5" TC connections NW10 fitting for use with Sample Valve or Thermometer and Thermowell Combo (Sample Valve or Thermometer and Thermowell not included) Note: Over tightening the airlock / orange bulk head can cause it to crack. Only thread the airlock down until it feels snug. Do not over tighten.

    $13,199.99

  • Low stock! IBC Tank - PC1000 - 1000L - Jacketed

    IBC Tank | Cooling Jacket | Stainless Steel | Forklift Base | 1000L

    Stainless steel IBC tanks provide a reliable solution in beverage making for storage, mixing, fermentation, and transportation Designed with a palletized base, built-in forklift channels, and a sturdy galvanized cage for easy movement and stacking up to 2-high Made from high-quality 304 stainless steel, ensuring durability and a hygienic environment for fermenting or aging beverages Lid features a 1.5" T.C. ferrule, allowing for the addition of a spunding valve, CIP spray ball, or other accessories Full draining bottom outlet with a 1.5" T.C. butterfly valve for efficient liquid transfer External cooling jacket with 1.5" T.C. inlet and outlet Also available without the cooling jacket Stainless steel IBC tanks provide a reliable solution in beverage making for storage, mixing, fermentation and transportation. Crafted from high-quality 304 stainless steel, these tanks ensure an airtight, hygienic environment that preserves the quality of both raw ingredients and finished beverages. The built-in forklift channels and robust outer cage make them easy to move around your facility, even when full, and allow them to be stacked on top of each other 2-high. These tanks feature a wide 15.75" lid opening with a 1.5" tri-clamp ferrule in the lid, allowing you to add a spunding valve for fermentation or CIP spray ball of cleaning. The 1.5" T.C. bottom outlet includes a stainless steel butterfly valve. Stainless steel IBC tote 1,000 L / 265 Gallons / 8.5 bbl capacity 1040L / 275 gallons Nominal Capacity (filled to brim) Welded cooling jacket with 1.5" T.C. In/Out 2mm thick 304 stainless steel Passivated Internal BA finish External satin finish Full draining bottom with 1.5" T.C. butterfly valve Upper lid diameter: 15.75" (400mm) 1.5" T.C. ferrule in lid Palletized base with fork lift slots Galvanized cage 44.6" x 44.6" x 57.4" Please Note: Do not stack more than 2 tanks, even when empty. Only move one tank at a time. Never move stacked tanks whether full or empty. The tank must be handled by means of the forks only from the front side. Never use the forks from the side.

    $5,499.99

  • Low stock! Speidel 2200L, 1400mm Diameter FO Dish Bottom Variable Volume Tank w/ Lid - Partial Jacket - Manway Speidel 2200L, 1400mm Diameter FO Dish Bottom Variable Volume Tank w/ Lid - Partial Jacket - Manway

    Speidel Variable Volume Tank | Cooling Jacket | Manway | Laser-Welded | Stainless Steel | 2200L

    Please​ note: the primary image is an example image and does not exactly match this tank. See below for features and specifications. Variable capacity tank well-suited for fermentation, wine aging, kombucha, and other applications Floating lid can be positioned as needed to match the volume of the liquid you're working with Proprietary rubber lid gasket allows for a superior seal compared to traditional gaskets, providing better protection for your wine Partial coverage cooling jacket for glycol cooling Swinging manyway door for easy removal of grape skins Hand crank lifting arm for lowering and lifting the floating lid Made in Germany by Speidel We are proud to present our line of premium quality stainless steel tanks. Built in Germany by Speidel, the world-class traditions of German engineering and craftsmanship are reflected in these tanks. And, after examining tanks built by every major manufacturer worldwide, we can safely say that when it comes to features, quality and price, these tanks represent the very best value available in stainless steel wine storage. Speidel Quality Features: Cooling Jacket - Fermenters are equipped with a partial jacket that is designed for an operating pressure of 2.5 to 6 bar. This will allow you to hook it into a glycol system (see our Kreyer Chilly45, GLY410) for complete temperature control! Interior Finish - Speidel tanks feature an ultra-smooth 2R rated interior surface which effectively resists the build-up of tartrate residues. Clean your tanks with cold water after cold stabilization! Say goodbye to harsh cleaning chemicals and expensive CIP systems! Weld Quality - Speidel's robotic-arm laser welders create flawless stainless to stainless junctions that look and feel more like a taped fabric seam than a traditional weld. Ultra high-quality welds leave no chance for residual product to harbor spoilage organisms. Thickness - Speidel tanks are designed to be the correct thickness for the tank's total volume. Manway - The "red wine" manway allows you to easily remove skins. Complete Drainage Bottoms - All Speidel tanks are outfitted with conical, pocketed bottoms for total drainage, which maximizes product yield at rackings and makes cleaning a snap. *Please note that smaller, flat-bottomed tanks do not feature total drainage bottoms. Tri-Clamp Valve Ferrules - All Speidel tanks come configured for use with Tri-Clamp (TC) style valves and fittings. Tanks up to 1600L capacity are outfitted with 1.5" TC racking outlet and bottom outlet. **Please Note: TC valves not included. Please inquire with your sales associate for pricing on TC valves and fittings. Rubber Lid Gaskets - The white rubber gaskets used by Speidel are much thicker than the traditional clear vinyl gaskets, which along with their extruded manufacturing process provide a much better seal with the tanks wall. They're seamless and more oxygen resistant than the clear gaskets. That means better protection for your wines! Warranty - Speidel-Behaelter, GMBH backs up each and every tank with an industry-leading 25 year warranty against defects in materials or workmanship. And, as a 5th generation manufacturer, you can be confident they'll be around to honor that warranty should the need arise. Tank Features: Volume: Sealed, 2200 L Variable Capacity Tank includes Floating lid and Heavy Duty White Rubber Gasket Complete Drainage Dish Bottom Lifting Arm Reinforced Racking valve 1.5" TC connections NW10 fitting for use with Sample Valve or Thermometer and Thermowell Combo (Sample Valve or Thermometer and Thermowell not included) Note: Over tightening the airlock / orange bulk head can cause it to crack. Only thread the airlock down until it feels snug. Do not over tighten.

    $9,899.99

  • 60L Speidel Stainless Flat Bottom Tank

    Speidel Flat Bottom Fermentation and Storage Tank | Stainless Steel | 60L

    High-quality stainless steel fermentation and storage tank Gasketed lid creates an airtight seal of long-term storage with no oxygen ingress Impeccable 2R (IIId) surface finish for easy cleaning A versatile vessel that works perfectly for storing, mixing, fermenting, and transporting liquid Made in Germany by Speidel This new universal cask from Speidel is perfect for storing, mixing, fermenting, and transporting a variety of liquids.  These premium storage tanks have a gasketed lid for airtight storage, handles for easy moving, and fittings to add airlocks or taps as necessary.  These casks are made with Speidel's impeccable craftsmanship, meaning high quality 304 stainless steel construction with a IIId surface finish, insuring easy cleanup and a long service life. Features: 304 SS construction IIId surface finish - easy cleanup 60 l (15.9 gal) volume Gasketed sealed tanks - no oxygen permeation during storage 69.2 cm (27.2") Height x 35 cm (13.8") Ø German quality construction with 25 year warranty Airlock hole with sealing cap in lid - use for storage or buy an airlock to use for fermenting  

    $579.99

  • 675 l (178 gal) Speidel Variable Volume Jacketed Dish Bottom Tank with Manway and Sight Gauge 675 l (178 gal) Speidel Variable Volume Jacketed Dish Bottom Tank with Manway and Sight Gauge

    Speidel Variable Volume Tank | Cooling Jacket | Laser-welded | Stainless Steel | 675L

    Due to high demand, this item is currently out of stock. Be the first to receive your items by placing a pre-order today. We will automatically ship this to you when we receive more inventory. Variable capacity tank well-suited for fermentation, wine aging, kombucha, pickling, and other applications Floating lid can be positioned as needed to match the volume of the liquid you're working with Proprietary rubber lid gasket allows for a superior seal compared to traditional gaskets, providing better protection for your wine Cooling jacket covers the entire tank of efficient glycol cooling Swinging manway door for easy removal of grape skins Made in Germany by Speidel We are proud to present our line of premium quality stainless steel tanks. Built in Germany by Speidel, the world-class traditions of German engineering and craftsmanship are reflected in these tanks. And, after examining tanks built by every major manufacturer worldwide, we can safely say that when it comes to features, quality and price, these tanks represent the very best value available in stainless steel wine storage. Speidel Quality Features: Cooling Jacket - This tank is equipped with a max coverage jacket that covers all accessible areas of the tank and is designed for an operating pressure of 2.5 to 6 bar. This will allow you to hook it into a glycol system (see our Kreyer Chilly45, GLY410) for complete temperature control! Interior Finish - Speidel tanks feature an ultra-smooth 2R rated interior surface which effectively resists the build-up of tartrate residues. Clean your tanks with cold water after cold stabilization! Say goodbye to harsh cleaning chemicals and expensive CIP systems! Weld Quality - Speidel's robotic-arm laser welders create flawless stainless to stainless junctions that look and feel more like a taped fabric seam than a traditional weld. Ultra high-quality welds leave no chance for residual product to harbor spoilage organisms. Thickness - Speidel tanks are designed to be the correct thickness for the tank's total volume. Manway - The "red wine" manway allows you to easily remove skins. Complete Drainage Bottoms - All Speidel tanks are outfitted with conical, pocketed bottoms for total drainage, which maximizes product yield at rackings and makes cleaning a snap. *Please note that smaller, flat-bottomed tanks do not feature total drainage bottoms. Tri-Clamp Valve Ferrules - All Speidel tanks come configured for use with Tri-Clamp (TC) style valves and fittings. Tanks up to 1600L capacity are outfitted for use with 1.5in TC. Other sizes and custom configurations are available at additional cost upon request. **Please Note: TC valves not included. Please inquire with your sales associate for pricing on TC valves and fittings. Rubber Lid Gaskets - The white rubber gaskets used by Speidel are much thicker than the traditional clear vinyl gaskets, which along with their extruded manufacturing process provide a much better seal with the tanks wall. They're seamless and more oxygen resistant than the clear gaskets. That means better protection for your wines! Warranty - Speidel-Behaelter, GMBH backs up each and every tank with an industry-leading 25 year warranty against defects in materials or workmanship. And, as a 5th generation manufacturer, you can be confident they'll be around to honor that warranty should the need arise. Tank Features: Volume: 675 L Sealed Variable Capacity Tank includes Floating lid and Heavy Duty White Rubber Gasket Manway Max Coverage Jacket: 1.1 m² (4x 1" MPT connections) Complete Drainage Dish Bottom Sight Gauge Reinforced Racking valve 1.5" TC connections Thermometer and Thermowell Combo included Sample Valve included Tank Dimensions: 900mm D x 1620mm H (35.4" D x 63.7" H) Please Note: This picture does not cover the complete feature set, and shows a lifting arm which is not included on the 675 l tank. Note: Over tightening the airlock / orange bulk head can cause it to crack. Only thread the airlock down until it feels snug. Do not over tighten.

    $5,679.99

  • 530L (140G) Variable Volume/Conical Bottom w/ Jacket 530L (140G) Variable Volume/Conical Bottom w/ Jacket

    Speidel Variable Volume Tank | Cooling Jacket | Laser-welded | Stainless Steel | 530L

    Variable capacity tank well-suited for fermentation, wine aging, kombucha, pickling, and other applications Floating lid can be positioned as needed to match the volume of the liquid you're working with Proprietary rubber lid gasket allows for a superior seal compared to traditional gaskets, providing better protection for your wine Partial cooling jacket provides 13 ft² (1.2m²) of coverage Conical-shaped complete drainage bottom for maximum product yield and easy cleaning Made from 304 stainless steel with ultra-high-quality laser welds Made in Germany by Speidel We are proud to present our line of premium quality stainless steel tanks. Built in Germany by Speidel, the world-class traditions of German engineering and craftsmanship are reflected in these tanks. And, after examining tanks built by every major manufacturer worldwide, we can safely say that when it comes to features, quality and price, these tanks represent the very best value available in stainless steel wine storage. Speidel Quality Features: Interior Finish - Speidel tanks feature an ultra-smooth 2R rated interior surface which effectively resists the build-up of tartarate residues. Clean your tanks with cold water after cold stabilization! Say goodbye to harsh cleaning chemicals and expensive CIP systems!   Weld Quality - Speidel's robotic-arm laser welders create flawless stainless to stainless junctions that look and feel more like a taped fabric seam than a traditional weld. Ultra high-quality welds leave no chance for residual product to harbor spoilage organisms.   Thickness - Speidel tanks are designed to be the correct thickness for the tank's total volume.   Complete Drainage Bottoms - All Speidel tanks are outfitted with conical, pocketed bottoms for total drainage, which maximizes product yield at rackings and makes cleaning a snap. *Please note that smaller, flat-bottomed tanks do not feature total drainage bottoms.   Tri-Clamp Valve Ferrules - All Speidel tanks come configured for use with Tri-Clamp (TC) style valves and fittings. Tanks up to 1600L capacity are outfitted for use with 1.5in TC. Other sizes and custom configurations are available at additional cost upon request. **Please Note: TC valves not included. Please inquire with your sales associate for pricing on TC valves and fittings.   Rubber Lid Gaskets - Rubber gaskets are much thicker than the traditional clear vinyl gaskets, which along with their extruded manufacturing process provide a much better seal with the tanks wall. They're seamless and more oxygen resistant than the clear gaskets. That means better protection for your wines!   Warranty - Speidel-Behaelter, GMBH backs up each and every tank with an industry-leading 25 year warranty against defects in materials or workmanship. And, as a 5th generation manufacturer, you can be confident they?ll be around to honor that warranty should the need arise. Tank Dimensions - 830mm D x 1361mm H (32.6" D x 53.5" H) Note: Over tightening the airlock / orange bulk head can cause it to crack. Only thread the airlock down until it feels snug. Do not over tighten.    

    $3,299.99

  • Speidel SS Storage Racks for Flat Bottom Tanks - 630mm - for 290L tanks (GER290VF) Speidel SS Storage Racks for Flat Bottom Tanks - 630mm - for 290L tanks (GER290VF)

    Speidel Storage Rack for Flat Bottom Tanks | BO/BD/UF | 630mm

    Stainless steel storage rack for Speidel Flat Bottom Tanks 550mm in diameter. Raise your tank off the ground to a comfortable operating height. Compatible with 290L tank GER290VF. Base Height: 15.9"

    $319.99

  • Speidel SS Storage Racks for Flat Bottom Tanks - 550mm - for 220L tanks (GER220VF) Speidel SS Storage Racks for Flat Bottom Tanks - 550mm - for 220L tanks (GER220VF)

    Speidel Storage Rack for Flat Bottom Tanks | BO/BD/UF | 550mm

    Stainless steel storage rack for Speidel Flat Bottom Tanks 550mm in diameter. Raise your tank off the ground to a comfortable operating height. Compatible with 220L tank GER220VF. Base Height: 15.9"

    $214.99

  • Low stock! Speidel 625L Stainless Tank w/ Jacket Speidel 625L Stainless Tank w/ Jacket

    Speidel Jacketed Tank | Full Jacket | Laser-Welded | Stainless Steel | 625L

    Premium quality laser-welded 304 stainless steel closed tank  Made in Germany by Speidel and backed by a 25-year warranty Ideal for spirits and fermented beverages like wine, beer, cider, and kombucha. Ultra-smooth 2R interior finish allows for easy cleaning with cold water Outfitted with a 6-bar max cooling jacket for efficient glycol cooling 1.5” tri-clamp ports with two additional DIN ports for included thermometer/thermowell combo and sample valve The top lid provides a convenient opening for additions and the legs provide easy access to the bottom ports Vaulted complete drainage bottom for maximum product yield and easy cleaning We are proud to present these FD storage tanks made of premium quality 304 stainless steel. Built in Germany by Speidel and sold exclusively in the USA by MoreWine! Pro for over 20 years, the world-class traditions of German engineering and craftsmanship are reflected in these tanks. And, after examining tanks built by every major manufacturer worldwide, we can safely say that when it comes to features, quality, and price, these tanks represent the very best value available in stainless steel beer storage. Safely store small volumes of product in these beautiful tanks. The legs make accessing the ports easy and the convenient top hatch makes cleaning a dream when combined with the 2R interior finish. Heavy-duty sealing mechanism and gasket form a seal on top with a stainless steel lid equipped with a T.C. port for adding accessories or an airlock. The inside is finished to Speidel quality standards with flawless welds and a 2R finish. The tanks will support a few PSI of pressure, however, they are not pressure-rated or designed to be used under pressure. Tank Ports Tanks feature 1.5" T.C. outlets (1 on bottom for complete drainage, one in middle for racking arm, one on top for blowoff/airlock), and also two welded DIN fittings. One DIN port is equipped with an included sample valve and the other has an included thermometer and thermowell combination.  The cooling jackets have two 1” NPT ports. Speidel Quality Features Full Jacket - These tanks are equipped with a max cooling jacket rated to 6-bar. This will allow you to hook it into a glycol system for complete temperature control. Interior Finish - Speidel tanks feature an ultra-smooth 2R interior surface which allows you to clean your tanks with cold water, without scrubbing. This saves significant labor costs. Weld Quality - Speidel's robotic-arm laser welders create flawless stainless-to-stainless junctions that look and feel more like a taped fabric seam than a traditional weld. Ultra high-quality welds leave no chance for residual products to harbor spoilage organisms. Warranty - Speidel and MoreWine! Pro back up each and every tank with an industry-leading 25-year warranty against defects in materials or workmanship. Thickness - Speidel tanks are on average around 25% thicker than Italian-manufactured tanks of the same general capacity and dimensions. Complete Drainage Bottoms - These tanks are outfitted with vaulted bottoms for total drainage, which maximizes product yield at racking and makes cleaning a snap. Tank Features: Full Volume of 625 L (165 gal) 1.5" T.C. Drain, Racking Port, and Lid outlet 8.5" Top hatch for easy cleaning and additions 2 X DIN10 Fittings w/ Sample Valve and Thermowell/Thermometer combo Tank Dimensions: 820mm D x 1661mm H (32.25" D x 60" H)

    $4,069.99

  • 45L Speidel Stainless Flat Bottom Tank 45L Speidel Stainless Flat Bottom Tank

    Speidel Flat Bottom Fermentation and Storage Tank | Stainless Steel | 45L

    High-quality stainless steel fermentation and storage tank Gasketed lid creates an airtight seal of long-term storage with no oxygen ingress Impeccable 2R (IIId) surface finish for easy cleaning A versatile vessel that works perfectly for storing, mixing, fermenting, and transporting liquid Made in Germany by Speidel This new universal cask from Speidel is perfect for storing, mixing, fermenting, and transporting a variety of liquids.  These premium storage tanks have a gasketed lid for airtight storage, handles for easy moving, and fittings to add airlocks or taps as necessary.  These casks are made with Speidel's impeccable craftsmanship, meaning high quality 304 stainless steel construction with a IIId surface finish, insuring easy cleanup and a long service life. Great for storage of wine, cider, juice, kombucha, or whatever else you may be making in 12 gallon batches! Features: 304 SS construction IIId surface finish - easy cleanup 45 l (11.8 gal) volume Gasketed sealed tanks - no oxygen permeation during storage 55 cm (21.7") Height x 35 cm (13.8") Ø German quality construction with 25 year warranty Airlock hole with sealing cap in lid - use for storage or buy an airlock to use for fermenting

    $494.99

  • Low stock! Speidel 1100L, 1000mm Diameter FO Dish Bottom Variable Volume Tank w/ Lid

    Speidel Variable Volume Tank | Laser-Welded | Stainless Steel | 1100L

    Please​ note: the primary image is an example image and does not exactly match this tank. See below for features and specifications. Variable capacity tank well-suited for fermentation, wine aging, kombucha, and other applications Floating lid can be positioned as needed to match the volume of the liquid you're working with Proprietary rubber lid gasket allows for a superior seal compared to traditional gaskets, providing better protection for your wine Pulley rope for lowering and lifting the floating lid Made in Germany by Speidel We are proud to present our line of premium quality stainless steel tanks. Built in Germany by Speidel, the world-class traditions of German engineering and craftsmanship are reflected in these tanks. And, after examining tanks built by every major manufacturer worldwide, we can safely say that when it comes to features, quality and price, these tanks represent the very best value available in stainless steel wine storage. Speidel Quality Features: Interior Finish - Speidel tanks feature an ultra-smooth 2R rated interior surface which effectively resists the build-up of tartrate residues. Clean your tanks with cold water after cold stabilization! Say goodbye to harsh cleaning chemicals and expensive CIP systems!   Weld Quality - Speidel's robotic-arm laser welders create flawless stainless to stainless junctions that look and feel more like a taped fabric seam than a traditional weld. Ultra high-quality welds leave no chance for residual product to harbor spoilage organisms.   Thickness - Speidel tanks are designed to be the correct thickness for the tank's total volume.   Complete Drainage Bottoms - All Speidel tanks are outfitted with conical, pocketed bottoms for total drainage, which maximizes product yield at rackings and makes cleaning a snap. *Please note that smaller, flat-bottomed tanks do not feature total drainage bottoms.   Tri-Clamp Valve Ferrules - All Speidel tanks come configured for use with Tri-Clamp (TC) style valves and fittings. Tanks up to 1600L capacity are outfitted for use with 1.5in TC. Other sizes and custom configurations are available at additional cost upon request. **Please Note: TC valves not included. Please inquire with your sales associate for pricing on TC valves and fittings.   Rubber Lid Gaskets - The white rubber gaskets used by Speidel are much thicker than the traditional clear vinyl gaskets, which along with their extruded manufacturing process provide a much better seal with the tanks wall. They're seamless and more oxygen resistant than the clear gaskets. That means better protection for your wines!   Warranty - Speidel-Behaelter, GMBH backs up each and every tank with an industry-leading 25 year warranty against defects in materials or workmanship. And, as a 5th generation manufacturer, you can be confident they'll be around to honor that warranty should the need arise. Tank Features: Volume: Sealed, 1100 L.  Open top, 1183 L Variable Capacity Tank includes Floating lid and Heavy Duty White Rubber Gasket Complete Drainage Dish Bottom Lifting Arm Reinforced Racking valve 1.5" TC connections NW10 fitting for use with Sample Valve or Thermometer and Thermowell Combo (Sample Valve or  Thermometer and Thermowell not included)   Note: Over tightening the airlock / orange bulk head can cause it to crack. Only thread the airlock down until it feels snug. Do not over tighten.    

    $4,179.99

  • Braumeister - 525L Stainless Tank Braumeister - 525L Stainless Tank

    Speidel Jacketed Tank | Full Jacket | Laser-Welded | Stainless Steel | 525L

    Premium quality laser-welded 304 stainless steel closed tank  Made in Germany by Speidel and backed by a 25-year warranty Ideal for spirits and fermented beverages like wine, beer, cider, and kombucha. Ultra-smooth 2R interior finish allows for easy cleaning with cold water Outfitted with a 6-bar max cooling jacket for efficient glycol cooling 1.5” tri-clamp ports with two additional DIN ports for included thermometer/thermowell combo and sample valve The top lid provides a convenient opening for additions and the legs provide easy access to the bottom ports Vaulted complete drainage bottom for maximum product yield and easy cleaning We are proud to present these FD storage tanks made of premium quality 304 stainless steel. Built in Germany by Speidel and sold exclusively in the USA by MoreWine! Pro for over 20 years, the world-class traditions of German engineering and craftsmanship are reflected in these tanks. And, after examining tanks built by every major manufacturer worldwide, we can safely say that when it comes to features, quality, and price, these tanks represent the very best value available in stainless steel beer storage. Safely store small volumes of product in these beautiful tanks. The legs make accessing the ports easy and the convenient top hatch makes cleaning a dream when combined with the 2R interior finish. Heavy-duty sealing mechanism and gasket form a seal on top with a stainless steel lid equipped with a T.C. port for adding accessories or an airlock. The inside is finished to Speidel quality standards with flawless welds and a 2R finish. The tanks will support a few PSI of pressure, however, they are not pressure-rated or designed to be used under pressure. Tank Ports Tanks feature 1.5" T.C. outlets (1 on bottom for complete drainage, one in middle for racking arm, one on top for blowoff/airlock), and also two welded DIN fittings. One DIN port is equipped with an included sample valve and the other has an included thermometer and thermowell combination.  The cooling jackets have two 1” NPT ports. Speidel Quality Features Full Jacket - These tanks are equipped with a max cooling jacket rated to 6-bar. This will allow you to hook it into a glycol system for complete temperature control. Interior Finish - Speidel tanks feature an ultra-smooth 2R interior surface which allows you to clean your tanks with cold water, without scrubbing. This saves significant labor costs. Weld Quality - Speidel's robotic-arm laser welders create flawless stainless-to-stainless junctions that look and feel more like a taped fabric seam than a traditional weld. Ultra high-quality welds leave no chance for residual products to harbor spoilage organisms. Warranty - Speidel and MoreWine! Pro back up each and every tank with an industry-leading 25-year warranty against defects in materials or workmanship. Thickness - Speidel tanks are on average around 25% thicker than Italian-manufactured tanks of the same general capacity and dimensions. Complete Drainage Bottoms - These tanks are outfitted with vaulted bottoms for total drainage, which maximizes product yield at racking and makes cleaning a snap. Tank Features: Full Volume of 525 L (138 gal) 1.5" T.C. Drain, Racking Port, and Lid outlet 8.5" Top hatch for easy cleaning and additions 2 X DIN10 Fittings w/ Sample Valve and Thermowell/ Thermometer combo Tank Dimensions: 820mm D x 1466mm H (32.25" D x 57.7" H)

    $2,999.99

  • Speidel 290L BO Flat Bottom Variable Volume Tank w/ Lid Speidel 290L BO Flat Bottom Variable Volume Tank w/ Lid

    Speidel Variable Volume Tank | Laser-Welded | Stainless Steel | 290L

    5 reviews

    Variable capacity tank well-suited for fermentation, wine aging, kombucha, pickling, and other applications Floating lid can be positioned as needed to match the volume of the liquid you're working with Proprietary rubber lid gasket allows for a superior seal compared to traditional gaskets, providing better protection for your wine Made from 304 stainless steel with ultra-high-quality laser welds 2R rated interior finish resists residue build-up and is easy to clean Air pump with pressure gauge, airlock, and ball valve included Made in Germany by Speidel We are is proud to offer our small Variable Volume Tanks from Speidel - a German manufacturer of premium quality stainless steel tanks for the wine industry. The tank body is fabricated from 304-type stainless steel, while the floating lid is made from 316-type stainless and has an inflatable bladder that pumps up to seal the wine off at any volume level. They can be used for primary fermentation as well as aging. Built in Germany by Speidel, the world-class traditions of German engineering and craftsmanship are reflected in these tanks. And, after examining tanks built by every major manufacturer worldwide, we can safely say that when it comes to features, quality and price, these tanks represent the very best value available in stainless steel wine storage. These tanks arrive to you complete and ready to go out of the box after a little assembly. The tanks are fitted with 1/2 inch threaded ports to accomodate the included 1/2 inch stainless steel ball valve and 1/2 inch stainless plug. The plugged port is intended for use with an optional thermometer (MT512). Speidel Quality Features: Rubber Lid Gaskets - Rubber gaskets are much thicker than the traditional clear vinyl gaskets, which along with their extruded manufacturing process provide a much better seal with the tanks wall. They're seamless and more oxygen resistant than the clear gaskets. That means better protection for your wines! Weld Quality - Speidel's robotic-arm laser welders create flawless stainless to stainless junctions that look and feel more like a taped fabric seam than a traditional weld. Ultra high-quality welds leave no chance for residual product to harbor spoilage organisms. Interior Finish - Speidel tanks feature an ultra-smooth 2R rated interior surface which effectively resists the build-up of tartarate residues. Clean your tanks with cold water after cold stabilization! Say goodbye to harsh cleaning chemicals and expensive CIP systems! Warranty - Speidel-Behaelter, GmbH backs up each and every tank with an industry-leading 25 year warranty against defects in materials or workmanship. And, as a 5th generation manufacturer, you can be confident they'll be around to honor that warranty should the need arise. Tank Dimensions - 630mm D x 999mm H (24.8" D x 39.3" H) Note: Over tightening the airlock / orange bulk head can cause it to crack. Only thread the airlock down until it feels snug. Do not over tighten.

    $1,084.99

  • Marchisio - 200 L Variable Capacity Tank - Flat Bottom - w/ Cooling Jacket, T.C. Valves

    Marchisio Variable Volume Tank | Cooling Jacket | Flat Bottom | Stainless Steel | Tri-Clamp | 200L

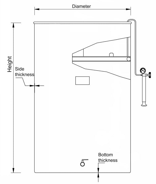
    Variable capacity tank well-suited for fermentation, short-term wine storage, kombucha, pickling, and other applications Floating lid can be positioned as needed to match the volume of the liquid you're working with Tank & lid are made from 304 stainless steel with a food-grade, clear plastic gasket for the lid Air pump with pressure gauge, dry airlock, and spigot are included Features cooling jacket, thermometer & thermowell, and 1.5" tri-clamp port with butterfly valve Made in Italy by Marchisio Variable Capacity tanks, also called Variable Volume tanks, made in Italy by Marchisio. This style of tank features a ‘floating’ lid with an inflatable gasket that can be positioned at any height in the tank. Use the included air pump to inflate the lid gasket. Whether you position the lid directly on the liquid, just above, or at the top of the tank is up to you. They are used as affordable stainless production tanks for applications ranging from winemaking to pickled foods and Kombucha.  Considerations for Winemaking When used in winemaking we recommend these tanks for fermentation and short-term storage. If you are considering storing wine in a variable volume tank for longer than a month, we suggest you consider our German-made Speidel Variable Volume Tanks. In addition to other quality features like a mirror polish inside, thicker stainless, and robotically welded seams, Speidel tanks feature a proprietary lid gasket that only fits their tanks.  This gasket is made from a very high quality, thick, white, food-grade, material that makes a true seal and resists oxygen transfer. This gasket also does not have the seam line that clear gaskets have. To learn more about the clear gaskets watch our video listed below the product copy.  All variable volume tanks other than those from Speidel, including these tanks from Marchisio, feature a standard clear gasket that is sufficient for many applications, but we do not recommend them for long term wine storage.  Marchisio We have been buying tanks from Marchisio since the 1990’s, so we have a long history of collaboration.  Marchisio is a classic Italian tank manufacturer that represents the best value in the industry. Great quality at a very competitive price. All tanks have a classic marbled finish on the outside and a smooth polished finish on the inside.  Each tank includes a dry airlock – a style of airlock that has a marble inside to make a seal. We recommend replacing this airlock with a classic water airlock to reduce potential oxidation. Includes: 304 Stainless Tank w/ Cooling Jacket 304 Stainless Floating Lid Food-Grade Floating Gasket Air Pump with pressure gauge Connection kit for connecting gasket to pump Dial Thermometer & Thermowell 1.5" Tri-Clamp port w/ butterfly valve Dry Airlock for tank 200L Specifications: Nominal volume: 200 Liters (52.8 gallons) Effective volume: 197 Liters (52 gallons) Diameter: 65 cm (25.5 inches) Height: 65 cm (25.5 inches) Port size: 1.5" T.C. *Please Note: Tank may differ slightly from image shown. Stands are sold separately.

    $1,604.99

  • IBC Tank - PC1000 - 1000L

    IBC Tank | Stainless Steel | Forklift Base | 1000L

    Stainless steel IBC tanks provide a reliable solution in beverage making for storage, mixing, fermentation, and transportation Designed with a palletized base, built-in forklift channels, and a sturdy galvanized cage for easy movement and stacking up to 2-high Made from high-quality 304 stainless steel, ensuring durability and a hygienic environment for fermenting or aging beverages Lid features a 1.5" T.C. ferrule, allowing for the addition of a spunding valve, CIP spray ball, or other accessories Full draining bottom outlet with a 1.5" T.C. butterfly valve for efficient liquid transfer Also available with an optional cooling jacket Stainless steel IBC tanks provide a reliable solution in beverage making for storage, mixing, fermentation and transportation. Crafted from high-quality 304 stainless steel, these tanks ensure an airtight, hygienic environment that preserves the quality of both raw ingredients and finished beverages. The built-in forklift channels and robust outer cage make them easy to move around your facility, even when full, and allow them to be stacked on top of each other 2-high. These tanks feature a wide 15.75" lid opening with a 1.5" tri-clamp ferrule in the lid, allowing you to add a spunding valve for fermentation or CIP spray ball for cleaning. The 1.5" T.C. bottom outlet includes a stainless steel butterfly valve. Stainless steel IBC tote 1,000 L / 265 G / 8.5 bbl capacity 1040L / 275 G Nominal capacity (filled to brim) 2mm thick 304 stainless steel Passivated Internal BA finish External satin finish Full draining bottom with 1.5" T.C. butterfly valve Upper lid diameter: 15.75" (400mm) 1.5" T.C. ferrule in lid Palletized base with fork lift slots Galvanized cage 44.6" x 44.6" x 57.4" Please Note: Do not stack more than 2 tanks, even when empty. Only move one tank at a time. Never move stacked tanks whether full or empty. The tank must be handled by means of the forks only from the front side. Never use the forks from the side.

    $4,999.99

  • Low stock! Speidel 100L FD Dish Bottom Sealed Tank

    Speidel Storage Tank | Laser-Welded | Stainless Steel | 100L

    Please​ note: the primary image is an example image and does not exactly match this tank. See below for features and specifications. Premium quality laser-welded 304 stainless steel closed tank  Made in Germany by Speidel and backed by a 25-year warranty Ideal for spirits and fermented beverages like wine, beer, cider, and kombucha. Ultra-smooth 2R interior finish allows for easy cleaning with cold water 1.5” tri-clamp ports with two additional DIN ports for included thermometer/thermowell combo and sample valve The top lid provides a convenient opening for additions and the legs provide easy access to the bottom ports Vaulted complete drainage bottom for maximum product yield and easy cleaning We are proud to present these FD storage tanks made of premium quality 304 stainless steel. Built in Germany by Speidel and sold exclusively in the USA by MoreWine! Pro for over 20 years, the world-class traditions of German engineering and craftsmanship are reflected in these tanks. And, after examining tanks built by every major manufacturer worldwide, we can safely say that when it comes to features, quality, and price, these tanks represent the very best value available in stainless steel beer storage. Safely store small volumes of product in these beautiful tanks. The legs make accessing the ports easy and the convenient top hatch makes cleaning a dream when combined with the 2R interior finish. Heavy-duty sealing mechanism and gasket form a seal on top with a stainless steel lid equipped with a T.C. port for adding accessories or an airlock. The inside is finished to Speidel quality standards with flawless welds and a 2R finish.  The tanks will support a few PSI of pressure, however, they are not pressure-rated or designed to be used under pressure.  Tank Ports Tanks feature 1.5" T.C. outlets (1 on bottom for complete drainage, one in middle for racking arm, one on top for blowoff/airlock), and also two welded DIN fittings. One DIN port is equipped with an included sample valve and the other has an included thermometer and thermowell combination. Speidel Quality Features Interior Finish - Speidel tanks feature an ultra-smooth 2R interior surface which allows you to clean your tanks with cold water, without scrubbing. This saves significant labor costs. Weld Quality - Speidel's robotic-arm laser welders create flawless stainless-to-stainless junctions that look and feel more like a taped fabric seam than a traditional weld. Ultra high-quality welds leave no chance for residual products to harbor spoilage organisms. Warranty - Speidel and MoreWine! Pro back up each and every tank with an industry-leading 25-year warranty against defects in materials or workmanship. Thickness - Speidel tanks are on average around 25% thicker than Italian-manufactured tanks of the same general capacity and dimensions. Complete Drainage Bottoms - These tanks are outfitted with vaulted bottoms for total drainage, which maximizes product yield at racking and makes cleaning a snap.  Tank Features: Full Volume of 100 L (26.4 gal) Perfect for blending two barrels of wine 1.5" T.C. Drain, Racking Port, and Lid outlet 8.5" Top hatch for easy cleaning and additions 2 X DIN10 Fittings w/ Sample Valve and Thermowell/Thermometer combo Tank Dimensions: 440mm D x 1141mm H (17.3" D x 45" H)

    $1,099.99

  • 110L Speidel Flat Bottom Variable Volume Tank 110L Speidel Flat Bottom Variable Volume Tank

    Speidel Variable Volume Tank | Laser-Welded | Stainless Steel | 110L

    8 reviews

    Variable capacity tank well-suited for fermentation, wine aging, kombucha, pickling, and other applications Floating lid can be positioned as needed to match the volume of the liquid you're working with Proprietary rubber lid gasket allows for a superior seal compared to traditional gaskets, providing better protection for your wine Made from 304 stainless steel with ultra-high-quality laser welds 2R rated interior finish resists residue build-up and is easy to clean Air pump with pressure gauge, airlock, and ball valve included Made in Germany by Speidel We are proud to offer our small Variable Volume Tanks from Speidel - a German manufacturer of premium quality stainless steel tanks for the wine industry. The tank body is fabricated from 304-type stainless steel, while the floating lid is made from 316-type stainless and has an inflatable bladder that pumps up to seal the wine off at any volume level. They can be used for primary fermentation as well as aging. Built in Germany by Speidel, the world-class traditions of German engineering and craftsmanship are reflected in these tanks. And, after examining tanks built by every major manufacturer worldwide, we can safely say that when it comes to features, quality and price, these tanks represent the very best value available in stainless steel wine storage. These tanks arrive to you complete and ready to go out of the box after a little assembly. The tanks are fitted with 1/2 inch threaded ports to accomodate the included 1/2 inch stainless steel ball valve and 1/2 inch stainless plug. The plugged port is intended for use with an optional thermometer (MT512). Speidel Quality Features: Rubber Lid Gaskets: Rubber gaskets are much thicker than the traditional clear vinyl gaskets, which along with their extruded manufacturing process provide a much better seal with the tanks wall. They're seamless and more oxygen resistant than the clear gaskets. That means better protection for your wines! Weld Quality - Speidel's robotic-arm laser welders create flawless stainless to stainless junctions that look and feel more like a taped fabric seam than a traditional weld. Ultra high-quality welds leave no chance for residual product to harbor spoilage organisms. Interior Finish - Speidel tanks feature an ultra-smooth 2R rated interior surface which effectively resists the build-up of tartarate residues. Clean your tanks with cold water after cold stabilization! Say goodbye to harsh cleaning chemicals and expensive CIP systems! Warranty - Speidel-Behaelter, GmbH backs up each and every tank with an industry-leading 25 year warranty against defects in materials or workmanship. And, as a 5th generation manufacturer, you can be confident they'll be around to honor that warranty should the need arise. Tank Dimensions: 440mm D x 765mm H (17.3" D x 30.1" H) Note: Over tightening the airlock / orange bulk head can cause it to crack. Only thread the airlock down until it feels snug. Do not over tighten.

    $774.99

  • 4400 l Speidel Sealed Tank with Manway, Top Hatch & Max Jacket 4400 l Speidel Sealed Tank with Manway, Top Hatch & Max Jacket

    Speidel Sealed Tank | Laser-welded | Cooling Jacket | Stainless Steel | 4400L

    Premium quality laser-welded stainless steel sealed tank wine, beer, spirits, cider, kombucha, and other beverages Cooling jacket covers the entire tank of efficient glycol cooling Top hatch provides a large, convenient opening for adding oak or other additions Conical-shaped complete drainage bottom for maximum product yield and easy cleaning Tri-clamp ferrule ports with thermometer and thermowell combo included Made in Germany by Speidel We are proud to present our line of premium quality stainless steel tanks. Built in Germany by Speidel, the world-class traditions of German engineering and craftsmanship are reflected in these tanks. And, after examining tanks built by every major manufacturer worldwide, we can safely say that when it comes to features, quality and price, these tanks represent the very best value available in stainless steel beverage storage. We've found that these tanks work well for beer, wine, spirits, cider, and more! Convenient top hatch makes cleaning and oaking easy. Heavy duty sealing mechanism and thick gasket ensure an air tight seal. The tanks will support a few p.s.i. of pressure, however they are not pressure rated or designed to be used under pressure. The inside is finished to Speidel quality standards. Bottom drain fittings are 1.5" Tri-Clamp. Flat bottom tanks do not have legs; conical tanks come standard with legs. Speidel Quality Features: Full Jacket - Equipped with a jacket that covers all accessible areas of the tank and is designed for an operating pressure of 2.5 to 6 bar. This will allow you to hook it into a glycol system (see our Kreyer Chilly45, GLY410) for complete temperature control! Interior Finish - Speidel tanks feature an ultra-smooth 2R rated interior surface which effectively resists the build-up of tartrate residues. Clean your tanks with cold water after cold stabilization! Say goodbye to harsh cleaning chemicals and expensive CIP systems! Weld Quality - Speidel's robotic-arm laser welders create flawless stainless to stainless junctions that look and feel more like a taped fabric seam than a traditional weld. Ultra high-quality welds leave no chance for residual product to harbor spoilage organisms. Thickness - Speidel tanks are designed to be the correct thickness for the tank's total volume. Complete Drainage Bottoms - All Speidel tanks are outfitted with conical, pocketed bottoms for total drainage, which maximizes product yield at rackings and makes cleaning a snap. *Please note that smaller, flat-bottomed tanks do not feature total drainage bottoms. Tri-Clamp Valve Ferrules - All Speidel tanks come configured for use with Tri-Clamp (TC) style valves and fittings. Tanks up to 1600L capacity are outfitted for use with 1.5 in TC. Other sizes and custom configurations are available at additional cost upon request. **Please Note: TC valves not included. Please inquire with your sales associate for pricing on TC valves and fittings. Rubber Lid Gaskets - Rubber gaskets are much thicker than the traditional clear vinyl gaskets, which along with their extruded manufacturing process provide a much better seal with the tanks wall. They're seamless and more oxygen resistant than the clear gaskets. That means better protection for your wines! Warranty - Speidel-Behaelter, GMBH backs up each and every tank with an industry-leading 25 year warranty against defects in materials or workmanship. And, as a 5th generation manufacturer, you can be confident they'll be around to honor that warranty should the need arise. Tank Features: Volume: Sealed, 4400 L. Open top, 4459 L Manway Lower Jacket: 3.2 m² (4x 1" MPT connections) Upper Jacket: 5.4 m² (2x 1" MPT connections) Complete Drainage Dish Bottom Reinforced Racking valve 2" TC connections Thermometer and Thermowell Combo included Sample Valve included Tank Dimensions: 1400mm D x 3465mm H (55.1" D x 136.4" H)

    $10,999.99

  • Braumeister - 240L Stainless Tank Braumeister - 240L Stainless Tank

    Speidel Jacketed Tank | Full Jacket | Laser-Welded | Stainless Steel | 240L

    Premium quality laser-welded 304 stainless steel closed tank  Made in Germany by Speidel and backed by a 25-year warranty Ideal for spirits and fermented beverages like wine, beer, cider, and kombucha. Ultra-smooth 2R interior finish allows for easy cleaning with cold water Outfitted with a 6-bar max cooling jacket for efficient glycol cooling 1.5” tri-clamp ports with two additional DIN ports for included thermometer/thermowell combo and sample valve The top lid provides a convenient opening for additions and the legs provide easy access to the bottom ports Vaulted complete drainage bottom for maximum product yield and easy cleaning We are proud to present these FD storage tanks made of premium quality 304 stainless steel. Built in Germany by Speidel and sold exclusively in the USA by MoreWine! Pro for over 20 years, the world-class traditions of German engineering and craftsmanship are reflected in these tanks. And, after examining tanks built by every major manufacturer worldwide, we can safely say that when it comes to features, quality, and price, these tanks represent the very best value available in stainless steel beer storage. Safely store small volumes of product in these beautiful tanks. The legs make accessing the ports easy and the convenient top hatch makes cleaning a dream when combined with the 2R interior finish. Heavy-duty sealing mechanism and gasket form a seal on top with a stainless steel lid equipped with a T.C. port for adding accessories or an airlock. The inside is finished to Speidel quality standards with flawless welds and a 2R finish.  The tanks will support a few PSI of pressure, however, they are not pressure-rated or designed to be used under pressure.  Tank Ports Tanks feature 1.5" T.C. outlets (1 on bottom for complete drainage, one in middle for racking arm, one on top for blowoff/airlock), and also two welded DIN fittings. One DIN port is equipped with an included sample valve and the other has an included thermometer and thermowell combination.  The cooling jackets have two 1” NPT ports. Speidel Quality Features Full Jacket - These tanks are equipped with a max cooling jacket rated to 6-bar. This will allow you to hook it into a glycol system for complete temperature control. Interior Finish - Speidel tanks feature an ultra-smooth 2R interior surface which allows you to clean your tanks with cold water, without scrubbing. This saves significant labor costs. Weld Quality - Speidel's robotic-arm laser welders create flawless stainless-to-stainless junctions that look and feel more like a taped fabric seam than a traditional weld. Ultra high-quality welds leave no chance for residual products to harbor spoilage organisms. Warranty - Speidel and MoreWine! Pro back up each and every tank with an industry-leading 25-year warranty against defects in materials or workmanship. Thickness - Speidel tanks are on average around 25% thicker than Italian-manufactured tanks of the same general capacity and dimensions. Complete Drainage Bottoms - These tanks are outfitted with vaulted bottoms for total drainage, which maximizes product yield at racking and makes cleaning a snap.  Tank Features: Full Volume of 240 L (63.4 gal) Perfect for blending two barrels of wine 1.5" T.C. Drain, Racking Port, and Lid outlet 8.5" Top hatch for easy cleaning and additions 2 X DIN10 Fittings w/ Sample Valve and Thermowell/Thermometer combo 2 x 1" NPT Ports on the jacket Tank Dimensions: 550mm D x 1524mm H (21.6" D x 60" H)

    $2,499.99

  • Low stock! Speidel 1600L, 1200mm Diameter FO Dish Bottom Variable Volume Tank w/ Lid - Partial Jacket - Manway Speidel 1600L, 1200mm Diameter FO Dish Bottom Variable Volume Tank w/ Lid - Partial Jacket - Manway

    Speidel Variable Volume Tank | Cooling Jacket | Manway | Laser-Welded | Stainless Steel | 1600L

    Please​ note: the primary image is an example image and does not exactly match this tank. See below for features and specifications. Variable capacity tank well-suited for fermentation, wine aging, kombucha, and other applications Floating lid can be positioned as needed to match the volume of the liquid you're working with Proprietary rubber lid gasket allows for a superior seal compared to traditional gaskets, providing better protection for your wine Partial coverage cooling jacket for glycol cooling Swinging manyway door for easy removal of grape skins Pulley rope for lowering and lifting the floating lid Made in Germany by Speidel We are proud to present our line of premium quality stainless steel tanks. Built in Germany by Speidel, the world-class traditions of German engineering and craftsmanship are reflected in these tanks. And, after examining tanks built by every major manufacturer worldwide, we can safely say that when it comes to features, quality and price, these tanks represent the very best value available in stainless steel wine storage. Speidel Quality Features: Cooling Jacket - Fermenters are equipped with a partial jacket that is designed for an operating pressure of 2.5 to 6 bar. This will allow you to hook it into a glycol system (see our Kreyer Chilly45, GLY410) for complete temperature control! Interior Finish - Speidel tanks feature an ultra-smooth 2R rated interior surface which effectively resists the build-up of tartrate residues. Clean your tanks with cold water after cold stabilization! Say goodbye to harsh cleaning chemicals and expensive CIP systems! Weld Quality - Speidel's robotic-arm laser welders create flawless stainless to stainless junctions that look and feel more like a taped fabric seam than a traditional weld. Ultra high-quality welds leave no chance for residual product to harbor spoilage organisms. Thickness - Speidel tanks are designed to be the correct thickness for the tank's total volume. Manway - The "red wine" manway allows you to easily remove skins. Complete Drainage Bottoms - All Speidel tanks are outfitted with conical, pocketed bottoms for total drainage, which maximizes product yield at rackings and makes cleaning a snap. *Please note that smaller, flat-bottomed tanks do not feature total drainage bottoms. Tri-Clamp Valve Ferrules - All Speidel tanks come configured for use with Tri-Clamp (TC) style valves and fittings. Tanks up to 1600L capacity are outfitted with 1.5" TC racking outlet and bottom outlet. **Please Note: TC valves not included. Please inquire with your sales associate for pricing on TC valves and fittings. Rubber Lid Gaskets - The white rubber gaskets used by Speidel are much thicker than the traditional clear vinyl gaskets, which along with their extruded manufacturing process provide a much better seal with the tanks wall. They're seamless and more oxygen resistant than the clear gaskets. That means better protection for your wines! Warranty - Speidel-Behaelter, GMBH backs up each and every tank with an industry-leading 25 year warranty against defects in materials or workmanship. And, as a 5th generation manufacturer, you can be confident they'll be around to honor that warranty should the need arise. Tank Features: Volume: Sealed, 1600 L Variable Capacity Tank includes Floating lid and Heavy Duty White Rubber Gasket Complete Drainage Dish Bottom Lifting Arm Reinforced Racking valve 1.5" TC connections NW10 fitting for use with Sample Valve or Thermometer and Thermowell Combo (Sample Valve or Thermometer and Thermowell not included) Note: Over tightening the airlock / orange bulk head can cause it to crack. Only thread the airlock down until it feels snug. Do not over tighten.

    $8,349.99

  • Marchisio - 300 L Variable Capacity Tank - Flat Bottom - w/ Cooling Jacket, T.C. Valves

    Marchisio Variable Volume Tank | Cooling Jacket | Flat Bottom | Stainless Steel | Tri-Clamp | 300L

    Variable capacity tank well-suited for fermentation, short-term wine storage, kombucha, pickling, and other applications Floating lid can be positioned as needed to match the volume of the liquid you're working with Tank & lid are made from 304 stainless steel with a food-grade, clear plastic gasket for the lid Air pump with pressure gauge, dry airlock, and 1.5" tri-clamp port with butterfly valve Features cooling jacket, thermometer & thermowell, 1.5" tri-clamp port Made in Italy by Marchisio Variable Capacity tanks, also called Variable Volume tanks, made in Italy by Marchisio. This style of tank features a ‘floating’ lid with an inflatable gasket that can be positioned at any height in the tank. Use the included air pump to inflate the lid gasket. Whether you position the lid directly on the liquid, just above, or at the top of the tank is up to you. They are used as affordable stainless production tanks for applications ranging from winemaking to pickled foods and Kombucha.  Considerations for Winemaking When used in winemaking we recommend these tanks for fermentation and short-term storage. If you are considering storing wine in a variable volume tank for longer than a month, we suggest you consider our German-made Speidel Variable Volume Tanks. In addition to other quality features like a mirror polish inside, thicker stainless, and robotically welded seams, Speidel tanks feature a proprietary lid gasket that only fits their tanks.  This gasket is made from a very high quality, thick, white, food-grade, material that makes a true seal and resists oxygen transfer. This gasket also does not have the seam line that clear gaskets have. To learn more about the clear gaskets watch our video listed below the product copy.  All variable volume tanks other than those from Speidel, including these tanks from Marchisio, feature a standard clear gasket that is sufficient for many applications, but we do not recommend them for long term wine storage.  Marchisio We have been buying tanks from Marchisio since the 1990’s, so we have a long history of collaboration.  Marchisio is a classic Italian tank manufacturer that represents the best value in the industry. Great quality at a very competitive price. All tanks have a classic marbled finish on the outside and a smooth polished finish on the inside.  Each tank includes a dry airlock – a style of airlock that has a marble inside to make a seal. We recommend replacing this airlock with a classic water airlock to reduce potential oxidation. Includes: 304 Stainless Tank w/ Cooling Jacket 304 Stainless Floating Lid Food-Grade Floating Gasket Air Pump with pressure gauge Connection kit for connecting gasket to pump Dial Thermometer & Thermowell 1.5" Tri-Clamp port w/ butterfly valve Dry Airlock for tank 300L Specifications: Nominal volume: 300 Liters (79.2 gallons) Effective volume: 305 Liters (80.5 gallons) Diameter: 65 cm (25.5 inches) Height: 100 cm (39.3 inches) Port size: 1.5" T.C. *Please Note: Tank may differ slightly from image shown. Stands are sold separately.

    $2,139.99

  • Speidel SS Storage Racks for Flat Bottom Tanks - 440mm - for 110L / 120L tanks (GER110VF / GER120F) Speidel SS Storage Racks for Flat Bottom Tanks - 440mm - for 110L / 120L tanks (GER110VF / GER120F)

    Speidel Storage Rack for Flat Bottom Tanks | BO/BD/UF | 440mm

    Stainless steel storage rack for Speidel Flat Bottom Tanks 440mm in diameter. Raise your tank off the ground to a comfortable operating height. Compatible with 110L and 120L tanks GER110VF and GER120F. Base Height: 15.9"

    $199.99

  • 1250 l Speidel Sealed Tank with Manway, Top Hatch & Max Jacket 1250 l Speidel Sealed Tank with Manway, Top Hatch & Max Jacket

    Speidel Sealed Tank | Cooling Jacket | Laser-Welded | Stainless Steel | 1250L

    Premium quality laser-welded stainless steel sealed tank wine, beer, spirits, cider, kombucha, and other beverages Cooling jacket covers the entire tank of efficient glycol cooling Top hatch provides a large, convenient opening for adding oak or other additions Conical-shaped complete drainage bottom for maximum product yield and easy cleaning Tri-clamp ferrule ports with thermometer and thermowell combo included Made in Germany by Speidel We are proud to present our line of premium quality stainless steel tanks. Built in Germany by Speidel, the world-class traditions of German engineering and craftsmanship are reflected in these tanks. And, after examining tanks built by every major manufacturer worldwide, we can safely say that when it comes to features, quality and price, these tanks represent the very best value available in stainless steel beverage storage. We've found that these tanks work well for beer, wine, spirits, cider, and more! Convenient top hatch makes cleaning and oaking easy. Heavy duty sealing mechanism and thick gasket ensure an air tight seal. The tanks will support a few p.s.i. of pressure, however they are not pressure rated or designed to be used under pressure. The inside is finished to Speidel quality standards. Bottom drain fittings are 1.5" Tri-Clamp. Flat bottom tanks do not have legs; conical tanks come standard with legs. Speidel Quality Features: Full Jacket - Equipped with a jacket that covers all accessible areas of the tank and is designed for an operating pressure of 2.5 to 6 bar. This will allow you to hook it into a glycol system (see our Kreyer Chilly45, GLY410) for complete temperature control! Interior Finish - Speidel tanks feature an ultra-smooth 2R rated interior surface which effectively resists the build-up of tartrate residues. Clean your tanks with cold water after cold stabilization! Say goodbye to harsh cleaning chemicals and expensive CIP systems! Weld Quality - Speidel's robotic-arm laser welders create flawless stainless to stainless junctions that look and feel more like a taped fabric seam than a traditional weld. Ultra high-quality welds leave no chance for residual product to harbor spoilage organisms. Thickness - Speidel tanks are designed to be the correct thickness for the tank's total volume. Complete Drainage Bottoms - All Speidel tanks are outfitted with conical, pocketed bottoms for total drainage, which maximizes product yield at rackings and makes cleaning a snap. *Please note that smaller, flat-bottomed tanks do not feature total drainage bottoms. Tri-Clamp Valve Ferrules - All Speidel tanks come configured for use with Tri-Clamp (TC) style valves and fittings. Tanks up to 1600L capacity are outfitted for use with 1.5 in TC. Other sizes and custom configurations are available at additional cost upon request. **Please Note: TC valves not included. Please inquire with your sales associate for pricing on TC valves and fittings. Rubber Lid Gaskets - Rubber gaskets are much thicker than the traditional clear vinyl gaskets, which along with their extruded manufacturing process provide a much better seal with the tanks wall. They're seamless and more oxygen resistant than the clear gaskets. That means better protection for your wines! Warranty - Speidel-Behaelter, GMBH backs up each and every tank with an industry-leading 25 year warranty against defects in materials or workmanship. And, as a 5th generation manufacturer, you can be confident they'll be around to honor that warranty should the need arise. Tank Features: Volume: Sealed, 1250 L. Open top, 1283 L Manway Jacket: 2.5 m² (4x 1" MPT connections) Complete Drainage Dish Bottom Reinforced Racking valve 2" TC connections Thermometer and Thermowell Combo included Sample Valve included Tank Dimensions: 1000mm D x 2135mm H (39.3" D x 84" H)

    $7,509.99

  • Speidel 525L FD Dish Bottom Sealed Tank

    Speidel Storage Tank | Laser-Welded | Stainless Steel | 525L

    Please​ note: the primary image is an example image and does not exactly match this tank. See below for features and specifications. Premium quality laser-welded 304 stainless steel closed tank  Made in Germany by Speidel and backed by a 25-year warranty Ideal for spirits and fermented beverages like wine, beer, cider, and kombucha. Ultra-smooth 2R interior finish allows for easy cleaning with cold water 1.5” tri-clamp ports with two additional DIN ports for included thermometer/thermowell combo and sample valve The top lid provides a convenient opening for additions and the legs provide easy access to the bottom ports Vaulted complete drainage bottom for maximum product yield and easy cleaning We are proud to present these FD storage tanks made of premium quality 304 stainless steel. Built in Germany by Speidel and sold exclusively in the USA by MoreWine! Pro for over 20 years, the world-class traditions of German engineering and craftsmanship are reflected in these tanks. And, after examining tanks built by every major manufacturer worldwide, we can safely say that when it comes to features, quality, and price, these tanks represent the very best value available in stainless steel beer storage. Safely store small volumes of product in these beautiful tanks. The legs make accessing the ports easy and the convenient top hatch makes cleaning a dream when combined with the 2R interior finish. Heavy-duty sealing mechanism and gasket form a seal on top with a stainless steel lid equipped with a T.C. port for adding accessories or an airlock. The inside is finished to Speidel quality standards with flawless welds and a 2R finish.  The tanks will support a few PSI of pressure, however, they are not pressure-rated or designed to be used under pressure.  Tank Ports Tanks feature 1.5" T.C. outlets (1 on bottom for complete drainage, one in middle for racking arm, one on top for blowoff/airlock), and also two welded DIN fittings. One DIN port is equipped with an included sample valve and the other has an included thermometer and thermowell combination. Speidel Quality Features Interior Finish - Speidel tanks feature an ultra-smooth 2R interior surface which allows you to clean your tanks with cold water, without scrubbing. This saves significant labor costs. Weld Quality - Speidel's robotic-arm laser welders create flawless stainless-to-stainless junctions that look and feel more like a taped fabric seam than a traditional weld. Ultra high-quality welds leave no chance for residual products to harbor spoilage organisms. Warranty - Speidel and MoreWine! Pro back up each and every tank with an industry-leading 25-year warranty against defects in materials or workmanship. Thickness - Speidel tanks are on average around 25% thicker than Italian-manufactured tanks of the same general capacity and dimensions. Complete Drainage Bottoms - These tanks are outfitted with vaulted bottoms for total drainage, which maximizes product yield at racking and makes cleaning a snap.  Tank Features: Full Volume of 525 L (138 gal) Perfect for blending two barrels of wine 1.5" T.C. Drain, Racking Port, and Lid outlet 8.5" Top hatch for easy cleaning and additions 2 X DIN10 Fittings w/ Sample Valve and Thermowell/Thermometer combo Tank Dimensions: 820mm D x 1466mm H (32.25" D x 57.7" H)

    $2,639.99

  • Speidel SS Storage Racks for Flat Bottom Tanks - 820mm - for 650L tanks (GER650VF) Speidel SS Storage Racks for Flat Bottom Tanks - 820mm - for 650L tanks (GER650VF)

    Speidel Storage Rack for Flat Bottom Tanks | BO/BD/UF | 820mm

    Stainless steel storage rack for Speidel Flat Bottom Tanks 550mm in diameter. Raise your tank off the ground to a comfortable operating height. Compatible with 650L tank GER650VF. Base Height: 15.9"

    $419.99

  • Low stock! Speidel 240L FD Dish Bottom Sealed Tank

    Speidel Storage Tank | Laser-Welded | Stainless Steel | 240L

    Please​ note: the primary image is an example image and does not exactly match this tank. See below for features and specifications. Premium quality laser-welded 304 stainless steel closed tank  Made in Germany by Speidel and backed by a 25-year warranty Ideal for spirits and fermented beverages like wine, beer, cider, and kombucha. Ultra-smooth 2R interior finish allows for easy cleaning with cold water 1.5” tri-clamp ports with two additional DIN ports for included thermometer/thermowell combo and sample valve The top lid provides a convenient opening for additions and the legs provide easy access to the bottom ports Vaulted complete drainage bottom for maximum product yield and easy cleaning We are proud to present these FD storage tanks made of premium quality 304 stainless steel. Built in Germany by Speidel and sold exclusively in the USA by MoreWine! Pro for over 20 years, the world-class traditions of German engineering and craftsmanship are reflected in these tanks. And, after examining tanks built by every major manufacturer worldwide, we can safely say that when it comes to features, quality, and price, these tanks represent the very best value available in stainless steel beer storage. Safely store small volumes of product in these beautiful tanks. The legs make accessing the ports easy and the convenient top hatch makes cleaning a dream when combined with the 2R interior finish. Heavy-duty sealing mechanism and gasket form a seal on top with a stainless steel lid equipped with a T.C. port for adding accessories or an airlock. The inside is finished to Speidel quality standards with flawless welds and a 2R finish.  The tanks will support a few PSI of pressure, however, they are not pressure-rated or designed to be used under pressure.  Tank Ports Tanks feature 1.5" T.C. outlets (1 on bottom for complete drainage, one in middle for racking arm, one on top for blowoff/airlock), and also two welded DIN fittings. One DIN port is equipped with an included sample valve and the other has an included thermometer and thermowell combination. Speidel Quality Features Interior Finish - Speidel tanks feature an ultra-smooth 2R interior surface which allows you to clean your tanks with cold water, without scrubbing. This saves significant labor costs. Weld Quality - Speidel's robotic-arm laser welders create flawless stainless-to-stainless junctions that look and feel more like a taped fabric seam than a traditional weld. Ultra high-quality welds leave no chance for residual products to harbor spoilage organisms. Warranty - Speidel and MoreWine! Pro back up each and every tank with an industry-leading 25-year warranty against defects in materials or workmanship. Thickness - Speidel tanks are on average around 25% thicker than Italian-manufactured tanks of the same general capacity and dimensions. Complete Drainage Bottoms - These tanks are outfitted with vaulted bottoms for total drainage, which maximizes product yield at racking and makes cleaning a snap.  Tank Features: Full Volume of 240 L (63.4 gal) Perfect for blending two barrels of wine 1.5" T.C. Drain, Racking Port, and Lid outlet 8.5" Top hatch for easy cleaning and additions 2 X DIN10 Fittings w/ Sample Valve and Thermowell/Thermometer combo Tank Dimensions: 550mm D x 1524mm H (21.6" D x 60" H)

    $1,719.99

  • Speidel 1100L, 1000mm Diameter FO Dish Bottom Variable Volume Tank w/ Lid - Double Jacket Speidel 1100L, 1000mm Diameter FO Dish Bottom Variable Volume Tank w/ Lid - Double Jacket

    Speidel Variable Volume Tank | Cooling Jacket | Laser-Welded | Stainless Steel | 1100L

    Please​ note: the primary image is an example image and does not exactly match this tank. See below for features and specifications. Variable capacity tank well-suited for fermentation, wine aging, kombucha, and other applications Floating lid can be positioned as needed to match the volume of the liquid you're working with Proprietary rubber lid gasket allows for a superior seal compared to traditional gaskets, providing better protection for your wine Double jacket for glycol cooling Pulley rope for lowering and lifting the floating lid Made in Germany by Speidel We are proud to present our line of premium quality stainless steel tanks. Built in Germany by Speidel, the world-class traditions of German engineering and craftsmanship are reflected in these tanks. And, after examining tanks built by every major manufacturer worldwide, we can safely say that when it comes to features, quality and price, these tanks represent the very best value available in stainless steel wine storage. Speidel Quality Features: Cooling Jacket - Fermenters are equipped with a double jacket that is designed for an operating pressure of 2.5 to 6 bar. This will allow you to hook it into a glycol system (see our Kreyer Chilly45, GLY410) for complete temperature control! Interior Finish - Speidel tanks feature an ultra-smooth 2R rated interior surface which effectively resists the build-up of tartrate residues. Clean your tanks with cold water after cold stabilization! Say goodbye to harsh cleaning chemicals and expensive CIP systems! Weld Quality - Speidel's robotic-arm laser welders create flawless stainless to stainless junctions that look and feel more like a taped fabric seam than a traditional weld. Ultra high-quality welds leave no chance for residual product to harbor spoilage organisms. Thickness - Speidel tanks are designed to be the correct thickness for the tank's total volume. Complete Drainage Bottoms - All Speidel tanks are outfitted with conical, pocketed bottoms for total drainage, which maximizes product yield at rackings and makes cleaning a snap. *Please note that smaller, flat-bottomed tanks do not feature total drainage bottoms. Tri-Clamp Valve Ferrules - All Speidel tanks come configured for use with Tri-Clamp (TC) style valves and fittings. Tanks up to 1600L capacity are outfitted with 1.5" TC racking outlet and bottom outlet. **Please Note: TC valves not included. Please inquire with your sales associate for pricing on TC valves and fittings. Rubber Lid Gaskets - The white rubber gaskets used by Speidel are much thicker than the traditional clear vinyl gaskets, which along with their extruded manufacturing process provide a much better seal with the tanks wall. They're seamless and more oxygen resistant than the clear gaskets. That means better protection for your wines! Warranty - Speidel-Behaelter, GMBH backs up each and every tank with an industry-leading 25 year warranty against defects in materials or workmanship. And, as a 5th generation manufacturer, you can be confident they'll be around to honor that warranty should the need arise. Tank Features: Volume: Sealed, 1100 L Variable Capacity Tank includes Floating lid and Heavy Duty White Rubber Gasket Complete Drainage Dish Bottom Lifting Arm Reinforced Racking valve 1.5" TC connections NW10 fitting for use with Sample Valve or Thermometer and Thermowell Combo (Sample Valve or Thermometer and Thermowell not included)   Note: Over tightening the airlock / orange bulk head can cause it to crack. Only thread the airlock down until it feels snug. Do not over tighten.  

    $6,599.99

  • Low stock! 120L Speidel Stainless Flat Bottom Tank

    Speidel Flat Bottom Fermentation and Storage Tank | Stainless Steel | 120L

    High-quality stainless steel fermentation and storage tank Gasketed lid creates an airtight seal of long-term storage with no oxygen ingress Impeccable 2R (IIId) surface finish for easy cleaning A versatile vessel that works perfectly for storing, mixing, fermenting, and transporting liquid Made in Germany by Speidel This new universal cask from Speidel is perfect for storing, mixing, fermenting, and transporting a variety of liquids.  These premium storage tanks have a gasketed lid for airtight storage, handles for easy moving, and fittings to add airlocks or taps as necessary.  These casks are made with Speidel's impeccable craftsmanship, meaning high quality 304 stainless steel construction with a IIId surface finish, insuring easy cleanup and a long service life. Features: 304 SS construction IIId surface finish - easy cleanup 120 l (31.7 gal) volume Gasketed sealed tanks - no oxygen permeation during storage 88 cm (34.7") Height x 44 cm (17.3") Ø German quality construction with 25 year warranty Airlock hole with sealing cap in lid - use for storage or buy an airlock to use for fermenting  

    $659.99

  • 200 L Variable Capacity Tank - Flat Bottom - 1/2 in BSP Spigot 200 L Variable Capacity Tank - Flat Bottom - 1/2 in BSP Spigot

    Marchisio Variable Volume Tank | Flat Bottom | Stainless Steel | Marbled Finish | 200L

    Variable capacity tank well-suited for fermentation, short-term wine storage, kombucha, pickling, and other applications Floating lid can be positioned as needed to match the volume of the liquid you're working with Tank & lid are made from 304 stainless steel with a food-grade, clear plastic gasket for the lid Air pump with pressure gauge, dry airlock, and spigot are included Made in Italy by Marchisio Variable Capacity tanks, also called Variable Volume tanks, made in Italy by Marchisio. This style of tank features a ‘floating’ lid with an inflatable gasket that can be positioned at any height in the tank. Use the included air pump to inflate the lid gasket. Whether you position the lid directly on the liquid, just above, or at the top of the tank is up to you. They are used as affordable stainless production tanks for applications ranging from winemaking to pickled foods and Kombucha.  Considerations for Winemaking When used in winemaking we recommend these tanks for fermentation and short-term storage. If you are considering storing wine in a variable volume tank for longer than a month, we suggest you consider our German-made Speidel Variable Volume Tanks. In addition to other quality features like a mirror polish inside, thicker stainless, and robotically welded seams, Speidel tanks feature a proprietary lid gasket that only fits their tanks.  This gasket is made from a very high quality, thick, white, food-grade, material that makes a true seal and resists oxygen transfer. This gasket also does not have the seam line that clear gaskets have. To learn more about the clear gaskets watch our video listed below the product copy.  All variable volume tanks other than those from Speidel, including these tanks from Marchisio, feature a standard clear gasket that is sufficient for many applications, but we do not recommend them for long term wine storage.  Marchisio We have been buying tanks from Marchisio since the 1990’s, so we have a long history of collaboration.  Marchisio is a classic Italian tank manufacturer that represents the best value in the industry. Great quality at a very competitive price. All tanks have a classic marbled finish on the outside and a smooth polished finish on the inside.  Each tank includes a dry airlock – a style of airlock that has a marble inside to make a seal. We recommend replacing this airlock with a classic water airlock to reduce potential oxidation. Includes 1/2" chrome plated spigot. Includes: 304 Stainless Tank 304 Stainless Floating Lid Food-Grade Floating Gasket Air Pump with pressure gauge Connection kit for connecting gasket to pump Dry Airlock for tank Chrome Plated Spigot 200L Specifications: Nominal volume: 200 Liters (52.8 gallons) Effective volume: 200 Liters (52.8 gallons) Diameter: 50 cm (20 inches) Height: 120 cm (47 inches) Valve size: 1/2" BSP Thickness (Bottom X side, in mm): 1.0 X 0.7 *Please Note: Tank may differ slightly from image shown. Stands are sold separately.  

    $764.99

  • Low stock! Marchisio - 400 L Variable Capacity Tank - Flat Bottom - w/ Cooling Jacket, T.C. Valves

    Marchisio Variable Volume Tank | Cooling Jacket | Flat Bottom | Stainless Steel | Tri-Clamp | 400L

    Variable capacity tank well-suited for fermentation, short-term wine storage, kombucha, pickling, and other applications Floating lid can be positioned as needed to match the volume of the liquid you're working with Tank & lid are made from 304 stainless steel with a food-grade, clear plastic gasket for the lid Air pump with pressure gauge, dry airlock, and 1.5" tri-clamp port with butterfly valve Features cooling jacket, thermometer & thermowell, 1.5" tri-clamp port Made in Italy by Marchisio Variable Capacity tanks, also called Variable Volume tanks, made in Italy by Marchisio. This style of tank features a ‘floating’ lid with an inflatable gasket that can be positioned at any height in the tank. Use the included air pump to inflate the lid gasket. Whether you position the lid directly on the liquid, just above, or at the top of the tank is up to you. They are used as affordable stainless production tanks for applications ranging from winemaking to pickled foods and Kombucha.  Considerations for Winemaking When used in winemaking we recommend these tanks for fermentation and short-term storage. If you are considering storing wine in a variable volume tank for longer than a month, we suggest you consider our German-made Speidel Variable Volume Tanks. In addition to other quality features like a mirror polish inside, thicker stainless, and robotically welded seams, Speidel tanks feature a proprietary lid gasket that only fits their tanks.  This gasket is made from a very high quality, thick, white, food-grade, material that makes a true seal and resists oxygen transfer. This gasket also does not have the seam line that clear gaskets have. To learn more about the clear gaskets watch our video listed below the product copy.  All variable volume tanks other than those from Speidel, including these tanks from Marchisio, feature a standard clear gasket that is sufficient for many applications, but we do not recommend them for long term wine storage.  Marchisio We have been buying tanks from Marchisio since the 1990’s, so we have a long history of collaboration.  Marchisio is a classic Italian tank manufacturer that represents the best value in the industry. Great quality at a very competitive price. All tanks have a classic marbled finish on the outside and a smooth polished finish on the inside.  Each tank includes a dry airlock – a style of airlock that has a marble inside to make a seal. We recommend replacing this airlock with a classic water airlock to reduce potential oxidation. Includes: 304 Stainless Tank w/ Cooling Jacket 304 Stainless Floating Lid Food-Grade Floating Gasket Air Pump with pressure gauge Connection kit for connecting gasket to pump Dial Thermometer & Thermowell 1.5" Tri-Clamp port w/ butterfly valve Dry Airlock for tank 400L Specifications: Nominal volume: 400 Liters (105.7 gallons) Effective volume: 424 Liters (112 gallons) Diameter: 65 cm (25.5 inches) Height: 130 cm (51 inches) Port size: 1.5" T.C. *Please Note: Tank may differ slightly from image shown. Stands are sold separately.

    $2,299.99

  • Low stock! 15L Speidel Stainless Flat Bottom Tank

    Speidel Flat Bottom Fermentation and Storage Tank | Stainless Steel | 15L

    High-quality stainless steel fermentation and storage tank Gasketed lid creates an airtight seal of long-term storage with no oxygen ingress Impeccable 2R (IIId) surface finish for easy cleaning A versatile vessel that works perfectly for storing, mixing, fermenting, and transporting liquid Made in Germany by Speidel This new universal cask from Speidel is perfect for storing, mixing, fermenting, and transporting a variety of liquids.  These premium storage tanks have a gasketed lid for airtight storage, handles for easy moving, and fittings to add airlocks or taps as necessary.  These casks are made with Speidel's impeccable craftsmanship, meaning high quality 304 stainless steel construction with a IIId surface finish, insuring easy cleanup and a long service life. Features: 304 SS construction IIId surface finish - easy cleanup 15 l (3.9 gal) volume Gasketed sealed tanks - no oxygen permeation during storage 35.2 cm (13.9") Height x 28 cm (11") Ø German quality construction with 25 year warranty Airlock hole with sealing cap in lid - use for storage or buy an airlock to use for fermenting  

    $384.99

  • 2200 l (581 gal) Speidel Variable Volume Max Jacketed Dish Bottom Tank with Oversized Manway, Extended Legs 2200 l (581 gal) Speidel Variable Volume Max Jacketed Dish Bottom Tank with Oversized Manway, Extended Legs

    Speidel Variable Volume Tank | Cooling Jacket | Laser-Welded | Stainless Steel | 2200L

    Variable capacity tank well-suited for fermentation, wine aging, kombucha, pickling, and other applications Floating lid can be positioned as needed to match the volume of the liquid you're working with Proprietary rubber lid gasket allows for a superior seal compared to traditional gaskets, providing better protection for your wine Cooling jacket covers the entire tank of efficient glycol cooling Hand crank lifting arm for lowering and lifting the floating lid Swinging manway door for easy removal of grape skins Made in Germany by Speidel We are proud to present our line of premium quality stainless steel tanks. Built in Germany by Speidel, the world-class traditions of German engineering and craftsmanship are reflected in these tanks. And, after examining tanks built by every major manufacturer worldwide, we can safely say that when it comes to features, quality and price, these tanks represent the very best value available in stainless steel wine storage. Speidel Quality Features: Cooling Jacket - This tank is equipped with a max coverage jacket that covers all accessible areas of the tank and is designed for an operating pressure of 2.5 to 6 bar. This will allow you to hook it into a glycol system (see our Kreyer Chilly45, GLY410) for complete temperature control! Interior Finish - Speidel tanks feature an ultra-smooth 2R rated interior surface which effectively resists the build-up of tartrate residues. Clean your tanks with cold water after cold stabilization! Say goodbye to harsh cleaning chemicals and expensive CIP systems! Weld Quality - Speidel's robotic-arm laser welders create flawless stainless to stainless junctions that look and feel more like a taped fabric seam than a traditional weld. Ultra high-quality welds leave no chance for residual product to harbor spoilage organisms. Thickness - Speidel tanks are designed to be the correct thickness for the tank's total volume. Manway - The "red wine" manway allows you to easily remove skins. Complete Drainage Bottoms - All Speidel tanks are outfitted with conical, pocketed bottoms for total drainage, which maximizes product yield at rackings and makes cleaning a snap. *Please note that smaller, flat-bottomed tanks do not feature total drainage bottoms. Tri-Clamp Valve Ferrules - All Speidel tanks come configured for use with Tri-Clamp (TC) style valves and fittings. Tanks up to 1600L capacity are outfitted for use with 1.5in TC. Other sizes and custom configurations are available at additional cost upon request. **Please Note: TC valves not included. Please inquire with your sales associate for pricing on TC valves and fittings. Rubber Lid Gaskets - The white rubber gaskets used by Speidel are much thicker than the traditional clear vinyl gaskets, which along with their extruded manufacturing process provide a much better seal with the tanks wall. They're seamless and more oxygen resistant than the clear gaskets. That means better protection for your wines! Warranty - Speidel-Behaelter, GMBH backs up each and every tank with an industry-leading 25 year warranty against defects in materials or workmanship. And, as a 5th generation manufacturer, you can be confident they'll be around to honor that warranty should the need arise. Tank Features: Volume: Sealed, 2237 L. Open top, 2344 L Variable Capacity Tank includes Floating lid and Heavy Duty White Rubber Gasket Large Manway Max Coverage Jacket: 3.2 m² (4x 1" MPT connections) Complete Drainage Dish Bottom Sight Gauge Lifting Arm with Winch Extended Legs - bottom dump port located 16" off the ground Reinforced Racking valve 2" TC connections Thermometer and Thermowell Combo included Sample Valve included Tank Dimensions: 1480mm D x 2009mm H (58.2" D x 79" H) With Lifting Arm: 2560mm H (100.7" H) Note: Over tightening the airlock / orange bulk head can cause it to crack. Only thread the airlock down until it feels snug. Do not over tighten.

    $11,694.99

  • Low stock! 2350 l Speidel Sealed Tank with Manway, Top Hatch & Max Jacket 2350 l Speidel Sealed Tank with Manway, Top Hatch & Max Jacket

    Speidel Sealed Tank | Cooling Jacket | Laser-Welded | Stainless Steel | 2350L

    Premium quality laser-welded stainless steel sealed tank wine, beer, spirits, cider, kombucha, and other beverages Cooling jacket covers the entire tank of efficient glycol cooling Top hatch provides a large, convenient opening for adding oak or other additions Conical-shaped complete drainage bottom for maximum product yield and easy cleaning Tri-clamp ferrule ports with thermometer and thermowell combo included Made in Germany by Speidel We are proud to present our line of premium quality stainless steel tanks. Built in Germany by Speidel, the world-class traditions of German engineering and craftsmanship are reflected in these tanks. And, after examining tanks built by every major manufacturer worldwide, we can safely say that when it comes to features, quality and price, these tanks represent the very best value available in stainless steel beverage storage. We've found that these tanks work well for beer, wine, spirits, cider, and more! Convenient top hatch makes cleaning and oaking easy. Heavy duty sealing mechanism and thick gasket ensure an air tight seal. The tanks will support a few p.s.i. of pressure, however they are not pressure rated or designed to be used under pressure. The inside is finished to Speidel quality standards. Bottom drain fittings are 1.5" Tri-Clamp. Flat bottom tanks do not have legs; conical tanks come standard with legs. Speidel Quality Features: Full Jacket - Equipped with a jacket that covers all accessible areas of the tank and is designed for an operating pressure of 2.5 to 6 bar. This will allow you to hook it into a glycol system (see our Kreyer Chilly45, GLY410) for complete temperature control! Interior Finish - Speidel tanks feature an ultra-smooth 2R rated interior surface which effectively resists the build-up of tartrate residues. Clean your tanks with cold water after cold stabilization! Say goodbye to harsh cleaning chemicals and expensive CIP systems! Weld Quality - Speidel's robotic-arm laser welders create flawless stainless to stainless junctions that look and feel more like a taped fabric seam than a traditional weld. Ultra high-quality welds leave no chance for residual product to harbor spoilage organisms. Thickness - Speidel tanks are designed to be the correct thickness for the tank's total volume. Complete Drainage Bottoms - All Speidel tanks are outfitted with conical, pocketed bottoms for total drainage, which maximizes product yield at rackings and makes cleaning a snap. *Please note that smaller, flat-bottomed tanks do not feature total drainage bottoms. Tri-Clamp Valve Ferrules - All Speidel tanks come configured for use with Tri-Clamp (TC) style valves and fittings. Tanks up to 1600L capacity are outfitted for use with 1.5 in TC. Other sizes and custom configurations are available at additional cost upon request. **Please Note: TC valves not included. Please inquire with your sales associate for pricing on TC valves and fittings. Rubber Lid Gaskets - Rubber gaskets are much thicker than the traditional clear vinyl gaskets, which along with their extruded manufacturing process provide a much better seal with the tanks wall. They're seamless and more oxygen resistant than the clear gaskets. That means better protection for your wines! Warranty - Speidel-Behaelter, GMBH backs up each and every tank with an industry-leading 25 year warranty against defects in materials or workmanship. And, as a 5th generation manufacturer, you can be confident they'll be around to honor that warranty should the need arise. Tank Features: Volume: Sealed, 2350 L. Open top, 2435 L Manway Lower Jacket: 2.0 m² (4x 1" MPT connections) Upper Jacket: 2.8 m² (2x 1" MPT connections) Complete Drainage Dish Bottom Reinforced Racking valve 2" TC connections Thermometer and Thermowell Combo included Sample Valve included Tank Dimensions: 1200mm D x 2690mm H (47.2" D x 105.9" H)

    $11,319.99

  • 300 L Variable Capacity Tank - Flat Bottom - 3/4 in BSP Spigot 300 L Variable Capacity Tank - Flat Bottom - 3/4 in BSP Spigot

    Marchisio Variable Volume Tank | Flat Bottom | Stainless Steel | Marbled Finish | 300L

    Variable capacity tank well-suited for fermentation, short-term wine storage, kombucha, pickling, and other applications Floating lid can be positioned as needed to match the volume of the liquid you're working with Tank & lid are made from 304 stainless steel with a food-grade, clear plastic gasket for the lid Air pump with pressure gauge, dry airlock, and spigot are included Made in Italy by Marchisio Variable Capacity tanks, also called Variable Volume tanks, made in Italy by Marchisio. This style of tank features a ‘floating’ lid with an inflatable gasket that can be positioned at any height in the tank. Use the included air pump to inflate the lid gasket. Whether you position the lid directly on the liquid, just above, or at the top of the tank is up to you. They are used as affordable stainless production tanks for applications ranging from winemaking to pickled foods and Kombucha. Considerations for Winemaking When used in winemaking we recommend these tanks for fermentation and short-term storage. If you are considering storing wine in a variable volume tank for longer than a month, we suggest you consider our German-made Speidel Variable Volume Tanks. In addition to other quality features like a mirror polish inside, thicker stainless, and robotically welded seams, Speidel tanks feature a proprietary lid gasket that only fits their tanks.  This gasket is made from a very high quality, thick, white, food-grade, material that makes a true seal and resists oxygen transfer. This gasket also does not have the seam line that clear gaskets have. To learn more about the clear gaskets watch our video listed below the product copy.  All variable volume tanks other than those from Speidel, including these tanks from Marchisio, feature a standard clear gasket that is sufficient for many applications, but we do not recommend them for long term wine storage.  Marchisio We have been buying tanks from Marchisio since the 1990’s, so we have a long history of collaboration.  Marchisio is a classic Italian tank manufacturer that represents the best value in the industry. Great quality at a very competitive price. All tanks have a classic marbled finish on the outside and a smooth polished finish on the inside.  Each tank includes a dry airlock – a style of airlock that has a marble inside to make a seal. We recommend replacing this airlock with a classic water airlock to reduce potential oxidation. Includes 3/4" chrome plated spigot. Includes: 304 Stainless Tank 304 Stainless Floating Lid Food-Grade Floating Gasket Air Pump with pressure gauge Connection kit for connecting gasket to pump Dry Airlock for tank Chrome Plated Spigot 300L Specifications: Nominal volume: 300 Liters (79.2 gallons) Effective volume: 305 Liters (80.5 gallons) Diameter: 65 cm (25.6 inches) Height: 100 cm (39.3 inches) Valve size: 3/4" BSP Thickness (Bottom X side, in mm): 1.0 X 0.7 *Please Note: Tank may differ slightly from image shown. Stands are sold separately.

    $914.99

Frequently Asked Questions

Stainless Steel Wine Tanks Collection Article +

Assembling a Variable Volume Tank Download print friendly version Congratulations on your purchase of a new stainless steel Variable Volume Tank from MoreWine! These instructions will guide you step-by-step through the process of assembling your tank and making it ready for your wine. We sell two brands, Marchisio & Speidel. Click the link above to see a pdf with pictures of each step. See page 2 for images of fully assembled lids. What you will need: Your tank and MoreWine! Hardware Pack A small screwdriver A crescent wrench About 15 minutes Remove the stainless lid and bladder package from the interior of the tank. Open the package and lay it out on the ground to ensure that everything has arrived intact. First we’ll assemble the lid. Remove the bladder from its package. Set the stem of the bladder through the hole in the rim of the tank and ensure that it is centered - like installing a bicycle inner tube. Now stretch the bladder the rest of the way around the lid’s rim. The easiest way to do this is to set the lid vertically on the ground and hold it in place with your foot. Stretch the tubing up around the bottom of the lid with both hands so that the last portion to slide on to the rim is the part that is exactly across from the stem. Next you want to locate the piece of clear vinyl tubing and remove the masking tape. Attach this tubing to the bladder with one of the enclosed hose clamps. If you are having trouble sliding the tubing on to the barb of the bladder, try soaking it in hot water for a few minutes to soften it up. Now attach the tubing to the barb on the pump and secure it with the other hose clamp. This is a great time to make sure that everything is attached correctly and holding pressure. Loosen the black knob next to the gauge on the pump, and inflate the bladder until the pressure gauge is reading somewhere in the green zone. Note what pressure you inflated to, then set the lid aside for now. We’ll want to come back in about 30 minutes to make sure no pressure has been lost. Now it is time to install the airlock in the lid. Remove the locknut from the bottom of the airlock, ensuring that the gasket stays with the upper part of the assembly. Install the airlock through the existing hole in the lid and secure in place with the locknut. Marchisio airlocks are white and Speidel airlocks are orange. If you have a Marchisio Tank attach the rope to the top of the airlock. Now it is time to install the rest of the hardware. Locate your MoreWine! Hardware pack and confirm that it included a 1/2” stainless steel ball valve, nipple and plug. The nipple and plug should be pre-wrapped with teflon tape to ensure a good seal. Thread the plug into the upper of the two ports as far as you can by hand. If you have purchased a thermometer or thermowell to be installed in the tank, then install this instead of the plug. Now thread the nipple into the ball valve, ensuring that the valve’s handle will face away from the tank once installed. Don’t worry if you can’t thread the nipple in very far by hand. Next install the ball valve / nipple assembly into the lower port on the tank. Again, thread it in as far as you can by hand and don’t worry if that is not very far - we will take care of that next. Now it is time to tighten down the plug and valve with the your crescent wrench. This process will not only make sure you have a good, leak free seal, but will also help seat the nipple into the ball valve as well. If you have a Marchisio Tank you will need to remove the white plastic protective liner from the inside of the tank and the clear plastic wrapping from the exterior. Almost finished! We strongly recommend that you take the time now to fill your tank with water and make sure there are no leaks of any kind. If you are dripping from the plug or valve joints, try tightening them further with the crescent wrench. If this does not work, try removing the offending piece and adding 2-3 additional wraps of teflon tape. If you are leaking from anywhere else on the tank please call our Customer Service line immediately (1- 800-823-0010). Assuming all is well and there are no leaks when the tank is water-tested, go back to the lid assembly and check to see you have not lost any pressure since you first pumped up the bladder. If you have, double check that the hose clamps are tight, but not so tight that they have cut into the tubing that runs from the bladder to the pump. Also check to be sure that the black knob at the top of the pump is tightened all the way. If you are still leaking, try applying a light spray of soapy water to each of the junctions and to the bladder itself to try to locate the leak. If the leak is endemic to a component of the system, give us a call to have a replacement sent out to you.

Login

Forgot your password?

Don't have an account yet?
Create account